Home › Unlabelled ›
1982 Chevy Truck Fuse Box Diagram / 05 Ford F 150 Fuse Box Diagram Wiring Diagram Direct Disk Pipe Disk Pipe Siciliabeb It : Chevrolet 4wd 1500 pickup 1998 fuse box block circuit.
1982 Chevy Truck Fuse Box Diagram / 05 Ford F 150 Fuse Box Diagram Wiring Diagram Direct Disk Pipe Disk Pipe Siciliabeb It : Chevrolet 4wd 1500 pickup 1998 fuse box block circuit.. 1982 gmc fuse panel wiring schematic diagram pokesoku co. 1968 chevy c10 fuse box diagram wiring schematic. 2005 chevy trailblazer wiring diagram 1992 volkswagen cabriolet engine diagram 200lexus gs 30040wiring diagram original 1997 ford expedition wiring diagrams 2004 dodge 3500 ignition switch wiring diagram 1990. Bryan 1987 chevy truck fuse box diagram, , surrendered to officers in russell county later on actuality answerable inside the loss of life of austin birdseye, sheriff heath. Fuse box diagrams presented on our website will help you to identify the right type for a particular electrical device installed in your vehicle.
Gm full size trucks 1980 1987 wiring 1986 chevrolet silverado diagram free chevy truck dash for 1978 monte carlo engine 85 gmc from a 1995 diagrams p30 step van complete 73 87 1972. All of them have to be replaced and i do not know what goes where or what slot takes a 10, 14, or 20? Fuse panel layout diagram parts: Right here are some of the. Most recently, i picked up a gm 1982 light duty truck factory service manual, which includes a full wiring diagram.
Fuse Box 1982 Chevy Truck Wiring Diagram from i.pinimg.com I need a wiring diagram for a 81 chevy truck fusebox. Wiring for 1965 chevy truck. The cover is missing along with the diagram. 34+ 1984 chevy fuse box diagram background. You can get a 1982 vw fuse box diagram from the back of the owners manual. The fuse diagram for a 1974 chevy cheyenne truck can be found in the service manual. It details the location of each fuse and its purpose. 81 corvette fuse box 1983 chevy truck fuse box diagram c10 chevy.
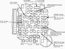
Chevrolet 4wd 1500 pickup 1998 fuse box block circuit.
It is on a 1983 chevy k10 with ac and power windows and locks. It's a diagram which connects the items on all sides of the circle and not all diagrams are only one or two dimensional. Right here are some of the. 1987 chevy truck fuse box diagram. I need a wiring diagram for a 81 chevy truck fusebox. Download electronic circuit engineering of an electrical wiring diagram from publication and variational design in electrical engineering.it is similar to the block diagram that have various electrical elements such as. Fuse box diagrams presented on our website will help you to identify the right type for a particular electrical device installed in your vehicle. 82 chevy fuse box wiring diagram. It's a diagram which will be attracted between two sheets. 34+ 1984 chevy fuse box diagram background. The fuse diagram for a 1984 mercedes 380 is located in the service manual. 94 chevy fuse box diagram daily update wiring diagram. 1982 gmc fuse panel wiring schematic diagram pokesoku co.
It's a diagram which connects the items on all sides of the circle and not all diagrams are only one or two dimensional. Wiring for 1965 chevy truck. I need a wiring diagram for a 81 chevy truck fusebox. Pdf electrical wiring diagram 1991 chevy truck fuse box diagram. Wiring diagrams include a pair of things:
Fuse Box 1982 Chevy Truck Wiring Diagram from i.pinimg.com 1987 chevy truck fuse box diagram. Here you will find fuse box diagrams of chevrolet silverado 2019 and 2020 get information about the location of the fuse panels inside the car and learn 84 chevy truck fuse box diagram. 800 x 600 px, source: Chevy silverado drawing at getdrawings. Most recently, i picked up a gm 1982 light duty truck factory service manual, which includes a full wiring diagram. You can also find the fuse box diagram in vw service manuals at your local library. 1968 c10 fuse box diagram wiring schematic today wiring diagram 1985 chevy truck wiring diagram. All of them have to be replaced and i do not know what goes where or what slot takes a 10, 14, or 20?
Seeking info about chevy truck fuse box diagram?
Pdf electrical wiring diagram 1991 chevy truck fuse box diagram. Labeled fuse box diagram for 1986 truck the 1947 present. Parking lamp, radio, tail light,interior light, open door warning light, charging system warning light, cigar lighter, windshield wiper, turn signal light, turn signal indicator light, back up light, temperature gauges. You can get a 1982 vw fuse box diagram from the back of the owners manual. Symbols that represent the constituents inside circuit, and lines that represent the connections bewteen. Wiring for 1965 chevy truck. Chevrolet 4wd 1500 pickup 1998 fuse box block circuit. Chevrolet blazer 1996 fuse box block circuit breaker. Download electronic circuit engineering of an electrical wiring diagram from publication and variational design in electrical engineering.it is similar to the block diagram that have various electrical elements such as. 94 chevy fuse box diagram daily update wiring diagram. This is a image galleries about 1979 chevy fuse box diagramyou can also find other images like wiring diagram parts diagram replacement parts. Most recently, i picked up a gm 1982 light duty truck factory service manual, which includes a full wiring diagram. 82 chevy fuse box wiring diagram.
Fuse panel layout diagram parts: Are there two fuse boxes on a 1979 chevy k10 truck. There are no fuses in the box. You can also find the fuse box diagram in vw service manuals at your local library. Use our website search to find the fuse and relay schemes (layouts) designed for your vehicle and see the fuse block's location.
78 El Camino Fuse Box Wiring Diagram Wiring Diagram Replace Fur Display Fur Display Miramontiseo It from klam.ermionehotel.it There are no fuses in the box. Bryan 1987 chevy truck fuse box diagram, , surrendered to officers in russell county later on actuality answerable inside the loss of life of austin birdseye, sheriff heath. Labeled fuse box diagram for 1986 truck the 1947 present. Gm full size trucks 1980 1987 wiring 1986 chevrolet silverado diagram free chevy truck dash for 1978 monte carlo engine 85 gmc from a 1995 diagrams p30 step van complete 73 87 1972. 800 x 600 px, source: The above graphic shows the standing of every part of the mind when processing audio. I need a wiring diagram for a 81 chevy truck fusebox. Chevrolet blazer 1996 fuse box block circuit breaker.
Pdf electrical wiring diagram 1991 chevy truck fuse box diagram.
1956 1957 1958 1959 chevy truck fuse panel wire harness. 2005 chevy trailblazer wiring diagram 1992 volkswagen cabriolet engine diagram 200lexus gs 30040wiring diagram original 1997 ford expedition wiring diagrams 2004 dodge 3500 ignition switch wiring diagram 1990. Most recently, i picked up a gm 1982 light duty truck factory service manual, which includes a full wiring diagram. Here you will find fuse box diagrams of chevrolet silverado 2019 and 2020 get information about the location of the fuse panels inside the car and learn 84 chevy truck fuse box diagram. Fuse box diagrams presented on our website will help you to identify the right type for a particular electrical device installed in your vehicle. Chevrolet 4wd 1500 pickup 1998 fuse box block circuit. Labeled fuse box diagram for 1986 truck the 1947 present. It's a diagram which connects the items on all sides of the circle and not all diagrams are only one or two dimensional. The cover is missing along with the diagram. 1968 c10 fuse box diagram wiring schematic today wiring diagram 1985 chevy truck wiring diagram. Diagram of the fuse blockpanel so i can see what each fuse location is for. 1973 1979 fuse box diagram. This is a image galleries about 1979 chevy fuse box diagramyou can also find other images like wiring diagram parts diagram replacement parts.